HOME-Au
HOME-Au
24h
24h
USA
USA
GOP
GOP
Phim Bộ
Phim Bộ
Videoauto
VIDEO-Au
Donation
Donation
News Book
News Book
News 50
News 50
worldautoscroll
WORLD-Au
Breaking
Breaking
 

Go Back   VietBF > World > Vietnam News | Tin Việt Nam > 2005-2023 Vietnam News


 
Thread Tools
 
 
  #1  
Old  Default Ngôi nhà Việt vừa được báo Mỹ vinh danh “Đẹp nhất 2019”
Vừa được báo Mỹ vinh danh “Đẹp nhất 2019”, ngôi nhà Việt khiến ai cũng kinh ngạc. Thiết kế ngôi nhà này được lấy cảm hứng từ phong cách thiết kế Châu Âu, kết hợp cùng lối thiết kế cởi mở của kiến trúc bản địa. Nó được tạp chí kiến trúc nổi tiếng Archdaily vinh danh là Ngôi nhà đẹp nhất 2019.

Ngôi nhà có tổng diện tích hơn 1000 m2, nằm tại thành phố sầm uất nhất của Việt Nam – thành phố Hồ Chí Minh.



Tạp chí Mỹ cho biết họ đã bị “hớp hồn và kinh ngạc” ngay từ lần đầu tiên nhìn thấy ngôi nhà…



….bởi thiết kế vừa sang trọng bậc nhất đất nước Việt Nam, vừa mang lại cảm giác ấm cúng cho người sinh sống bên trong ngôi nhà.



Thiết kế này là một câu trả lời cho lối sống đương đại của người trẻ hiện đại.



Ngôi nhà sở hữu một bể bơi riêng…



…. là nơi tổ chức các bữa tiệc ngoài trời của gia đình.



Lối vào ngôi nhà giống như lối vào của một khách sạn 5 sao.



Sơ đồ tầng trệt của ngôi nhà.



Tầng hầm ngôi nhà có sức chứa tới bảy chiếc xe, với một sân trung tâm để lấy ánh sáng tự nhiên và thông gió.



Sơ đồ thiết kế tầng 1 của ngôi nhà.



Phòng khách tại tầng 1 là nơi tiếp khách, đồng thời là nơi trưng bày những siêu xe của chủ nhân.



Vẻ đẹp sang trọng của căn phòng khách.



Khu vực nấu ăn sang trọng chẳng khác nào một khách sạn 5 sao….



…với một khu vực rộng lớn và đầy đủ tiện nghi.



Khu vực ăn uống của gia đình ấm cúng với thiết kế hoàn toàn từ gỗ.



Phòng tắm với tông màu trắng khác biệt với màu sắc chung của ngôi nhà.



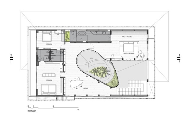
Sơ đồ thiết kế tầng 2.



Một phòng ngủ có thiết kế khá đơn giản với tông màu sáng, giống như mọi ngôi nhà tại Việt Nam.



Một phòng ngủ khác đầy đủ tiện nghi, sang trọng với tông màu tối.



Ngôi nhà nhìn từ trên cao.

VietBF@ sưu tầm.
Dịch trang: EnglishEnglish DeutschDeutsch FrançaisFrançais EspañolEspañol ItalianoItaliano PortuguêsPortuguês
NorskNorsk NederlandsNederlands DanskDansk SuomiSuomi PolskiPolski ČeštinaČeština РусскийРусский
日本語日本語 한국어한국어 中文(简体)中文(简体) 中文(繁體)中文(繁體) MagyarMagyar TürkçeTürkçe
العربيةالعربية ไทยไทย LatinaLatina हिन्दीहिन्दी Bahasa IndonesiaBahasa Indonesia Bahasa MelayuBahasa Melayu
VIETBF Hybrid Community Content Hub

HOT NEWS 24h

HOT 3 Days

NEWS 3 Days

HOT 7 Days

NEWS 7 Days

HOME

Breaking News

VietOversea

World News

Business News

Car News

Computer News

Game News

USA News

Mobile News

Music News

Movies News

History

Thơ Ca

Sport News

Stranger Stories

Comedy Stories

Cooking Chat

Nice Pictures

Fashion

School

Travelling

Funny Videos

Canada Tin Hay

USA Tin Hay

VietBF Homepage Autoscroll

VietBF Video Autoscroll Portal

Video Classic Master

iPad News Portal

VietBF iPad Music Portal

Tin nóng nhất 50h qua

Phim Bộ Online

Phim Bộ



PinaColada
R11 Tuyệt Thế Thiên Hạ
Release: 07-27-2019
Reputation: 137091


Profile:
Join Date: Oct 2013
Posts: 122,971
Last Update: None Rating: None
Attached Thumbnails
Click image for larger version

Name:	191.jpg
Views:	0
Size:	300.8 KB
ID:	1425767   Click image for larger version

Name:	192.jpg
Views:	0
Size:	298.6 KB
ID:	1425768   Click image for larger version

Name:	194.jpg
Views:	0
Size:	489.5 KB
ID:	1425769  

Click image for larger version

Name:	195.jpg
Views:	0
Size:	304.7 KB
ID:	1425770   Click image for larger version

Name:	196.jpg
Views:	0
Size:	310.6 KB
ID:	1425771   Click image for larger version

Name:	197.jpg
Views:	0
Size:	321.3 KB
ID:	1425772  

Click image for larger version

Name:	198.jpg
Views:	0
Size:	338.7 KB
ID:	1425773   Click image for larger version

Name:	199.jpg
Views:	0
Size:	27.6 KB
ID:	1425774   Click image for larger version

Name:	1910.jpg
Views:	0
Size:	255.7 KB
ID:	1425775  

Click image for larger version

Name:	1911.jpg
Views:	0
Size:	58.8 KB
ID:	1425776   Click image for larger version

Name:	1912.jpg
Views:	0
Size:	258.8 KB
ID:	1425777   Click image for larger version

Name:	1913.jpg
Views:	0
Size:	342.3 KB
ID:	1425778  

Click image for larger version

Name:	1914.jpg
Views:	0
Size:	154.1 KB
ID:	1425779   Click image for larger version

Name:	1915.jpg
Views:	0
Size:	287.5 KB
ID:	1425780   Click image for larger version

Name:	1917.jpg
Views:	0
Size:	224.0 KB
ID:	1425781  

Click image for larger version

Name:	1918.jpg
Views:	0
Size:	230.0 KB
ID:	1425782   Click image for larger version

Name:	1919.jpg
Views:	0
Size:	43.4 KB
ID:	1425783   Click image for larger version

Name:	1920.jpg
Views:	0
Size:	240.8 KB
ID:	1425784  

Click image for larger version

Name:	1921.jpg
Views:	0
Size:	346.3 KB
ID:	1425785   Click image for larger version

Name:	1922.jpg
Views:	0
Size:	392.4 KB
ID:	1425786  
PinaColada_is_offline
Thanks: 9
Thanked 7,924 Times in 7,052 Posts
Mentioned: 2 Post(s)
Tagged: 0 Thread(s)
Quoted: 23 Post(s)
Rep Power: 141
PinaColada Reputation Uy Tín Level 9PinaColada Reputation Uy Tín Level 9PinaColada Reputation Uy Tín Level 9PinaColada Reputation Uy Tín Level 9PinaColada Reputation Uy Tín Level 9
PinaColada Reputation Uy Tín Level 9PinaColada Reputation Uy Tín Level 9PinaColada Reputation Uy Tín Level 9PinaColada Reputation Uy Tín Level 9PinaColada Reputation Uy Tín Level 9PinaColada Reputation Uy Tín Level 9PinaColada Reputation Uy Tín Level 9PinaColada Reputation Uy Tín Level 9PinaColada Reputation Uy Tín Level 9PinaColada Reputation Uy Tín Level 9PinaColada Reputation Uy Tín Level 9PinaColada Reputation Uy Tín Level 9PinaColada Reputation Uy Tín Level 9PinaColada Reputation Uy Tín Level 9PinaColada Reputation Uy Tín Level 9PinaColada Reputation Uy Tín Level 9PinaColada Reputation Uy Tín Level 9PinaColada Reputation Uy Tín Level 9PinaColada Reputation Uy Tín Level 9PinaColada Reputation Uy Tín Level 9PinaColada Reputation Uy Tín Level 9PinaColada Reputation Uy Tín Level 9
Dịch trang: EnglishEnglish DeutschDeutsch FrançaisFrançais EspañolEspañol ItalianoItaliano PortuguêsPortuguês
NorskNorsk NederlandsNederlands DanskDansk SuomiSuomi PolskiPolski ČeštinaČeština РусскийРусский
日本語日本語 한국어한국어 中文(简体)中文(简体) 中文(繁體)中文(繁體) MagyarMagyar TürkçeTürkçe
العربيةالعربية ไทยไทย LatinaLatina हिन्दीहिन्दी Bahasa IndonesiaBahasa Indonesia Bahasa MelayuBahasa Melayu
Old 07-28-2019   #2
TIEN NU
R5 Cao Thủ Thượng Thừa
 
Join Date: Sep 2017
Posts: 1,829
Thanks: 2,112
Thanked 1,221 Times in 647 Posts
Mentioned: 1 Post(s)
Tagged: 0 Thread(s)
Quoted: 251 Post(s)
Rep Power: 10
TIEN NU Reputation Uy Tín Level 4TIEN NU Reputation Uy Tín Level 4TIEN NU Reputation Uy Tín Level 4TIEN NU Reputation Uy Tín Level 4TIEN NU Reputation Uy Tín Level 4TIEN NU Reputation Uy Tín Level 4TIEN NU Reputation Uy Tín Level 4TIEN NU Reputation Uy Tín Level 4TIEN NU Reputation Uy Tín Level 4TIEN NU Reputation Uy Tín Level 4TIEN NU Reputation Uy Tín Level 4TIEN NU Reputation Uy Tín Level 4TIEN NU Reputation Uy Tín Level 4TIEN NU Reputation Uy Tín Level 4TIEN NU Reputation Uy Tín Level 4TIEN NU Reputation Uy Tín Level 4
Default

Tạp chí Mỹ cho biết họ đã bị “hớp hồn và kinh ngạc” ngay từ lần đầu tiên nhìn thấy ngôi nhà…......?????????? ???????????

nhảm nhảm quải LLLLLLLLLLLLLLLLLLLL LLLLL
TIEN NU_is_offline  
Old 08-30-2019   #3
Chieuta
R3 Hảo Kiếm Khách
 
Join Date: Mar 2019
Posts: 328
Thanks: 1
Thanked 104 Times in 65 Posts
Mentioned: 0 Post(s)
Tagged: 0 Thread(s)
Quoted: 19 Post(s)
Rep Power: 8
Chieuta Reputation Uy Tín Level 1Chieuta Reputation Uy Tín Level 1Chieuta Reputation Uy Tín Level 1Chieuta Reputation Uy Tín Level 1
Default

Toan là tien mô hôi nuoc mac cua nguoi dân nghèo không. Cuop cua ho de cho gia dình minh huong thu. Dúng là su CS.
Chieuta_is_offline  
 
User Tag List



 

iPad Videos Portal Autoscroll

VietBF Music Portal Autoscroll

iPad News Portal Autoscroll

VietBF Homepage Autoscroll

VietBF Video Autoscroll Portal

USA News Autoscroll Portall

VietBF WORLD Autoscroll Portal

Video Classic Master Page

Super Widescreen

iPad World Portal Autoscroll

iPad USA Portal Autoscroll

Phim Bộ Online
Lên đầu Xuống dưới Lên 3000px Xuống 3000px

Tin nóng nhất 24h qua

Tin nóng nhất 3 ngày qua

Tin nóng nhất 7 ngày qua

Tin nóng nhất 30 ngày qua

Albums

Total Videos Online

Tranh luận sôi nổi nhất 7 ngày qua

Tranh luận sôi nổi nhất 14 ngày qua

Tranh luận sôi nổi nhất 30 ngày qua

10.000 Tin mới nhất

Tin tức Hoa Kỳ

Tin tức Công nghệ
Lên đầu Xuống dưới Lên 3000px Xuống 3000px

Duo Series Movies Portal

Duo Music Portal

Phim Bộ

Tỷ Giá

Thời Tiết

Tin Nóng Nhất 50h

Super News

School Cooking Traveling Portal

Enter Portal

Series Shows and Movies Online

Home Classic Master Page

Donation Ủng hộ $3 cho VietBF
Lên đầu Xuống dưới Lên 3000px Xuống 3000px
Diễn Đàn Người Việt Hải Ngoại. Tự do ngôn luận, an toàn và uy tín. Vì một tương lai tươi đẹp cho các thế hệ Việt Nam hãy ghé thăm chúng tôi, hãy tâm sự với chúng tôi mỗi ngày, mỗi giờ và mỗi giây phút có thể. VietBF.Com Xin cám ơn các bạn, chúc tất cả các bạn vui vẻ và gặp nhiều may mắn.
Welcome to Vietnamese American Community, Vietnamese European, Canadian, Australian Forum, Vietnamese Overseas Forum. Freedom of speech, safety and prestige. For a beautiful future for Vietnamese generations, please visit us, talk to us every day, every hour and every moment possible. VietBF.Com Thank you all and good luck.

Lên đầu Xuống dưới Lên 3000px Xuống 3000px

All times are GMT. The time now is 21:50.
VietBF - Vietnamese Best Forum Copyright ©2005 - 2026
User Alert System provided by Advanced User Tagging (Pro) - vBulletin Mods & Addons Copyright © 2026 DragonByte Technologies Ltd.
Log Out Unregistered

Page generated in 0.12355 seconds with 13 queries